Grove City, OH
Building on previous work.
GroveCity2050 is part of a long-standing relationship between Planning NEXT and Grove City. Past work by Planning NEXT for the community has included form-based regulations for the City’s Historic Town Center, a Vision Charrette for the Town Center, a Parks and Recreation Comprehensive Plan and the Land Development Framework for a Thoroughfare Plan Update. The GroveCity2050 focused on land use, transportation and economic development. The effort integrated new analysis with recent city-led studies and incorporated regional initiatives such as Insight2050, the Metropolitan Transportation Plan, the Central Ohio Transit Authority’s NextGen Plan, Columbus2020, and SmartColumbus.
Award-wining process.
To ensure support for the effort, the City put together a 30-member citizen steering committee formed through a public application process. The committee contributed to the Plan’s vision and recommendations and helped conduct community outreach. The engagement effort included a hands-on planning workshop, an open house, and online opportunities.
Innovative planning.
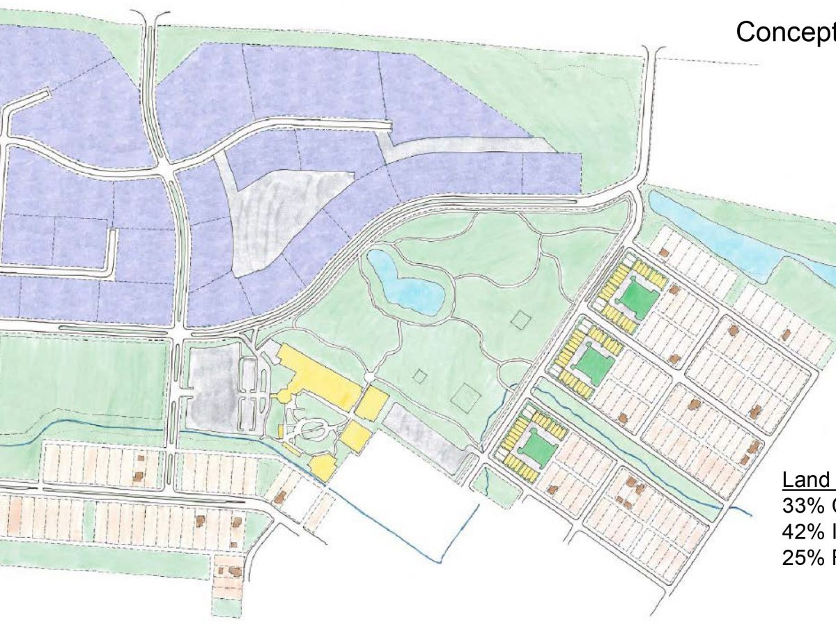
GroveCity2050 is the City’s first plan to link land use, transportation, and economic development. Its major recommendations include limiting outward expansion to areas already served by infrastructure, utilizing a character-based approach to land use, encouraging redevelopment and mixed use in strategic locations, supporting a complete streets philosophy, and creating a more diverse economy with job opportunities for residents. The Plan was unanimously approved by City Council in January 2018, and Grove City is currently working on major implementation steps including a rewrite of their zoning and land development regulations.
Related News
Learn More
Tags
Project Type: Area Planning
Community Type: Small city
Client: Grove City, Ohio
Services: visioning, land use planning, area planning






